¸ÞÀκñÁê¾ó

°í°´Áö¿ø

ŸÀÌÆ²¹Ú½º

°Ô½ÃÆÇ

´ç½ÅÀ» À§ÇÑ Ã¢, °¡¼ººñ»þ½Ã TSnKÀÔ´Ï´Ù.

COMPANY

TSnK ÅéŬ¶ó½º ¾Ë¹Ì´½Ã¢È£ : (¾ÆÁ¸)´Ü¿­¹Ù 2025-12-24
÷ºÎÆÄÀÏ :   


ÇÁ¸®¹Ì¾ö °¡¼ººñ ´Ü¿­»þ½Ã 

TSnK ÅéŬ¶ó½º ¾Ë¹Ì´½Ã¢È£


(¾ÆÁ¸) ´Ü¿­¹Ù


¾Ë¹Ì´½Ã¢È£ unsplash.png

(Ãâó :  Photo by Mark von Werder on Unsplash)


TOPSASH ¾Ë¹Ì´½Ã¢È£ : (¾ÆÁ¸)´Ü¿­¹Ù
Sliding Type 2W 3W 4W H ¸ÁW ¸ÁH À¯¸®
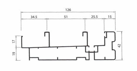
126mm 
(´Ü¿­¹Ù)
³²¼± (W-206)
¡À2
(W-352)¡À4   H-69 ·Î¶ó+108 H-55 ·Î¶ó-10
ÀÛÀº¹® X2+110 H-205


AZON 126mm SLIDING WINDOW (126mm ´Ü¿­ ½½¶óÀ̵ù) - ºí·¢, ½Ç¹ö


126mm ÈÄ·½.gif
»ó»ì.gif ·Î¶ó»ì.gif
¼ÕÀâÀÌ»ì.gif °í¸®»ì.gif

126mm ÈÄ·½ :  KH126SL-A104 1.672kg/m 

»ó»ì :  KH126SL-A403 0.684kg/m

·Î¶ó»ì :  KH126SL-A603 1.243kg/m 

¼ÕÀâÀÌ»ì :  KH126SL-A703 1.055kg/m 

°í¸®»ì :  KH126SL-A803 0.934kg/m


AZON CURTAIN WALL (´Ü¿­ Ŀư¿ù) - ºí·¢, ½Ç¹ö

´Ü¿­ ¹Ý ¸ðÂ¥¹Ù.gif ´Ü¿­ ¸ðÂ¥¹Ù.gif

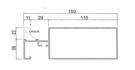
´Ü¿­ ¹Ý ¸ðÂ¥¹Ù :  CW - 021 2.011kg/m / THK - 1.5t
´Ü¿­ ¸ðÂ¥¹Ù : CW - 019 2.130kg/m / THK - 1.5t

´Ü¿­ ¸¶°¨¹Ù.gif
´Ü¿­ ²ÀÁö¹Ù.gif

´Ü¿­ ¸¶°¨¹Ù :   MUL - 4367 2.262kg/m / THK - 1.8t
´Ü¿­ ²ÀÁö¹Ù : MUL - 4710 2.277kg/m / THK - 2.0t

´Ü¿­ ¸ðÂ¥¹Ù PJ ¹®Â¦.gif ´Ü¿­ ¸ðÂ¥¹Ù PJ ÈÄ·½.gif

´Ü¿­ ¸ðÂ¥¹Ù PJ ¹®Â¦ :   CW - 323 1.014kg/m / THK - 1.5t
´Ü¿­ ¸ðÂ¥¹Ù PJ ÈÄ·½ : CW - 322 1.012kg/m / THK - 1.5t

´Ü¿­ ²ÀÁö¹Ù PJ ¹®Â¦.gif ´Ü¿­ ²ÀÁö¹Ù PJ ÈÄ·½.gif
´Ü¿­ ²ÀÁö¹Ù PJ ¹®Â¦  :  MUL - 4322 1.156kg/m / THK - 1.5t
´Ü¿­ ²ÀÁö¹Ù PJ ÈÄ·½ :  MUL - 4320 0.670kg/m / THK - 1.5t


TSnK ÅéŬ¶ó½º ¾Ë¹Ì´½Ã¢È£

TSnK-TOPCLASS-4µµ.png
 
¸ñ·Ïº¸±â
´ÙÀ½±Û   ¡ã TSnK ÅéŬ¶ó½º ¾Ë¹Ì´½ °¢ÆÄÀÌÇÁ ¹× ±âŸºÎÀÚÀç
ÀÌÀü±Û   ¡å °¡¼ººñ»þ½Ã Åé»þ½Ã°¡ µå¸®´Â ÄèÀûÇÑ ÁÖ°Å »ýȰÀ» À§ÇÑ ÆÁII : ¿©¸§À» ÄèÀûÇϰÔ